Котел КВм 0.3 МВт с РПК в Балхаше

Котел КВм 0.3 МВт с топкой РПК
Котел КВм 0.3 МВт с РПК
Котел КВм 0.3 с РПК чертеж
Чертеж котла КВм 0.3 с РПК
Топка с РПК котла КВм 0.3 МВт
Топка РПК котла КВм 0.3 МВт
Топка РПК водогрейного котла КВм-0.3
Топка РПК водогрейного котла КВм 0.3
Топка с ручными поворотными колосниками котла КВм-0.3
Топка с ручными поворотными колосниками котла КВм 0.3
Водогрейный котел 0.3 МВт с топкой РПК
Водогрейный котел 0.3 МВт с РПК
Промышленный котел КВм 0.3 с топкой РПК
Промышленный котел КВм 0.3 с РПК
Топка ручная с поворотными колосниками котла КВм 0.3
Топка ручная котла КВм 0.3 с поворотными колосниками
Котел КВм 0.3 МВт с топкой РПК
Котел КВм 0.3 с РПК чертеж
Топка с РПК котла КВм 0.3 МВт
Топка РПК водогрейного котла КВм-0.3
Топка с ручными поворотными колосниками котла КВм-0.3
Водогрейный котел 0.3 МВт с топкой РПК
Промышленный котел КВм 0.3 с топкой РПК
Топка ручная с поворотными колосниками котла КВм 0.3
Цена
по запросу
От 0 ₸ с доставкой до г.
  • Модель с ручным забросом топлива в топку и полуавтоматическим сбросом золы шлака при помощи поворотных опрокидывающихся колосников
  • Дутье и тяга регулируются шиберами
  • Надежная работа котла обеспечивается изготовлением трубной системы из трубы сталь 10-20 повышенной прочности

Технические характеристики котла КВм 0.3 МВт с РПК

МаркаКотел КВм 0.3 МВт с РПК
ВидВодогрейный
Тип отопительного котлаТвердотопливный
БрендHEATEXPERT
ТипКотел КВм
Вид топкиМеханическая, РПК
Максимальная тепловая мощность0.3 МВт
Максимальная тепловая мощность300 кВт
Максимальная тепловая мощность0.26 Гкал
Диапазон регулирования мощности50-100 %
ТопливоТвердое, Уголь
Низшая теплота сгорания проектного топлива5230 кКал/кг
КПД котла на УГЛЕ, не менее80 %
Расход УГЛЯ среднечасовой за отопительный сезон34.3 кг/ч
Расход УГЛЯ при максимальной нагрузке котла60 кг/ч
Расход условного топлива45 кг/ч
Минимальная температура воды на входе в котел55 °С
Максимальная температура воды на выходе из котла115 °С
Давление воды, не более0.3-0.6 (3-6) МПа (кгс/см²)
Номинальный расход теплоносителя11 м³/ч
Расход теплоносителя через котел min-max8-14 м³/ч
Гидравлическое сопротивление при номинальном расходене более 0.07 (0.7) МПа (кгс/см²)
Аэродинамическое сопротивление134 (13.66) Па (мм. вод. ст.)
Разряжение в топочной камере20-40 (2-4) Па (мм. вод. ст.)
Объем уходящих газов1300 м³/ч
Температура уходящих газов220 °С
ТягаУравновешенная
Водяной объем котла240 л
Объем топочной камеры0.91 м³
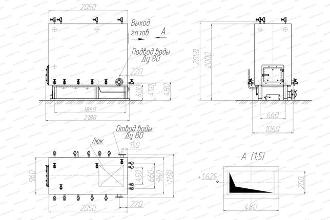
Размер топочной камеры, длина*ширина*высота1010х660х1370 мм
Активная площадь решетки горения0.67 м²
Присоединительные размеры по водяному тракту50 Ду
Присоединительные размеры газохода уходящих газов, ширина*высота / сечение390х200 / 0.08 мм/м²
Габаритные размеры блока, длина*ширина*высота2000х1300х1750 мм
Габаритные размеры котла, длина*ширина*высота2000х1300х2150 мм
Масса1500 кг
Конструкция котлаВодотрубная
Количество контуровОдноконтурный
РазмещениеНапольный
Тип камеры сгоранияОткрытый
УправлениеЭлектронное
Принцип работы твердотопливного котлаКлассический
ЭнергонезависимыйНет
Тип питанияТрехфазное
Встроенный циркуляционный насосНет
Встроенный расширительный бакНет
ЭнергоэффективностьВысокая
Отапливаемая площадьот 2300 до 3300 м²
Отапливаемый объемот 6900 до 10000 м³

Водогрейный котел КВм 0.3 МВт с РПК в Балхаше

Водогрейный котел с топкой РПК мощностью 0.3 МВт работает на каменном и буром угле, используется для отопления и горячего водоснабжения жилых и административных зданий, промышленных помещений, производственных предприятий. Температура нагрева воды 115 °С, рабочее давление 0,3-0,6 МПа. Данными котлами оборудуются полумеханизированные котельные, в которых установлены системы шлакозолоудаления.

Котел 0.3 МВт с РПК конструкция

Промышленный стальной полумеханический котел 0 3 МВт с топкой РПК для отопления изготавливается двухблочным – котельный блок и топка. Трубная система котла - горизонтальная, гладкотрубная, топочное пространство газоплотное. Газоплотность топки достигается за счет вварки стальной полосы между охлаждаемыми трубами. Это исключает поступление холодного воздуха в топку и максимально снижает теплопотери. Снаружи котлоагрегат обшивается теплоизоляцией и стальными листами.

Топка РПК имеет наклонные поворотные колосники. В зависимости от конструкции канала шлакоудаления поворотные колосники устанавливаются в заднюю, либо в переднюю часть топки. Стационарные водонагревательные котлы 0 3 МВт с топкой РПК устанавливаются в котельных с ручной подачей топлива и механическим золошлакоудалением.

Большая площадь поверхностей нагрева обеспечивает максимальную теплопередачу. Увеличение площади происходит благодаря особому способу установки конвективных пакетов. Конвективные пакеты располагаются в котле друг напротив друга в шахматном порядке. Такое расположение обеспечивает необходимую площадь нагрева, охлаждение дымовых газов на выходе до 200-180 °С и компактность котла.

Обозначение котла в соответствии с ГОСТ 30735-2001 - Котел -0.3 КБ, Котел 0.3 РПК.

Гидравлическая схема котла

Создание турбулентных потоков путем повышения скорости теплоносителя в трубах предотвращает отложение накипи и солей в системе. В коллекторах отопительного котла 0.3 МВт с РПК находятся перегородки, которые распределяют поток воды так, чтобы исключить образование застоя, возникновение теплового напряжение и локального перегрева.

Принцип работы котла КВм 0.3 МВт с РПК

Топливо подается в топку вручную на топочную решетку. По мере прогорания топлива зола и шлак сдвигаются к ряду поворотных колосников. С помощью специального рычага наклонные колосники опрокидываются, зола и шлак попадают в канал золошлакоудаления и перемещаются в отвал.

Комплект поставки

Цена на водогрейный котел 0,3 МВт с топкой РПК включает базовую комплектацию. В состав базовой комплектации входит: котельный блок, топка, вентилятор поддува, колосники, затворы, предохранительные клапаны, вентили, манометры, термометры, трехходовые краны.

Дополнительная комплектация

  • автоматика – обеспечивает управление и безопасность котла;
  • дымосос – создает разряжение в котле и исключает попадание дыма в помещение;
  • золоуловитель – применяется для улавливания золы из дымовых газов;
  • циркуляционный насос - обеспечивает циркуляцию воды в котлоагрегате;
  • подпиточный насос – позволяет пополнять объем теплоносителя в контуре.

Купить котел КВм 0.3 МВт с РПК

Для того, что бы купить котел КВм 0.3 МВт с РПК в Балхаше вы можете сделать заявку по телефону +7-7172-69-59-73, либо оформить заявку онлайн. Менеджеры дадут консультацию по подбору вспомогательного оборудования для выбранных вами моделей и рассчитают стоимость доставки. Транспортирование котлоагрегата и вспомогательного оборудования до объекта осуществляется автомобильным транспортом.

Комплект поставки котла КВм 0.3 МВт с РПК

Вентилятор
Вентилятор 2 с дв. 1,5/3000
1 штука
Затвор ДУ 50
Затвор Ду 50
2 штуки
Топка с РПК котла КВм
Топка РПК
1 штука
Клапан обратный
Клапан обратный
1 штука
Манометр МП 160
Манометр МП 160
2 штуки
Кран трехходовой ДУ 15
Кран Ду 15
2 штуки
Термометр ТТЖО
Термометр ТТЖО
2 штуки
Оправа термометра ОПТ
Оправа ОПТ
2 штуки
Вентиль Ду 15
Вентиль Ду 15
4 штуки
Вентиль Ду 20
Вентиль Ду 20
12 штук

Вспомогательное оборудование для работы котла КВм 0.3 МВт с РПК

Насос К консольный
К 50-32-125
Цена 283 656 тг.
Насос К консольный
К 50-32-125а
Цена 279 204 тг.
Насос TD
Насос TD32-33G2 (3 кВт)
Цена 788 640 тг.
Насос CHL
Насос CHL2-40 (0.55 кВт)
Цена 368 880 тг.
Дымосос ДН 3.5
Цена 355 524 тг.
Золоуловитель ЗУ 0.4
Цена 273 480 тг.
Дымосос ДН 6.3
Цена 644 904 тг.

Аналоги котла КВм 0.3 МВт с РПК

КВр-0.3 К котел
Котел КВр 0.3 МВт
Вид топкиРучная, Колосники
Максимальная тепловая мощность, МВт0.3
ТопливоТвердое, Уголь
Отапливаемая площадь, м²от 2300 до 3300
Цена 2 906 520 тг.
Котел КВм 0.35 МВт с топкой РПК
Котел КВм 0.35 МВт с РПК
Вид топкиМеханическая, РПК
Максимальная тепловая мощность, МВт0.35
ТопливоТвердое, Уголь
Отапливаемая площадь, м²от 2600 до 3900
Цена 4 261 200 тг.
Котел КВм 0.4 МВт с топкой РПК
Котел КВм 0.4 МВт с РПК
Вид топкиМеханическая, РПК
Максимальная тепловая мощность, МВт0.4
ТопливоТвердое, Уголь
Отапливаемая площадь, м²от 3000 до 4300
Цена 4 343 880 тг.

Сертификат и качество котла КВм 0.3 МВт с РПК

Сертификат на водогрейные котлы на твердом и жидком топливе
Сертификат на водогрейные котлы на твердом топливе

Собственное производство

Котельный завод производит
  • Паровые котлы от 300 кг до 2.5 тонны пара в час
  • Промышленные водогрейные котлы от 150 КВт до 4 МВт на всех видах топлива
  • Механические топки ТШПМ, шурующая планка и ТЛПХ, ленточное полотно прямого хода
  • Циклоны для очистки воздуха и дымовых газов для производств и промышленных отраслей
  • Транспортеры и системы топливоподачи и шлакоудаления
Подробнее о производстве
Собственное производство
Смотреть видео
с производства